Cette petite maison de jardin en bois d’épicéa brut est idéale pour jouir d’une pièce supplémentaire ainsi que d’un espace couvert dans votre jardin. Vous pourrez entreposer vos outils ou même ranger votre barbecue et coussins d’extérieur afin de les garder à l’abri des intempéries.
Dimensions de l’annexe :
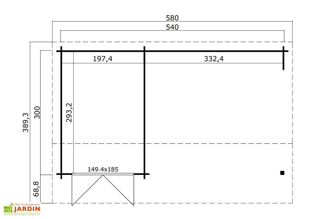
- Dimensions au sol : 300 x 540 cm – 16,2 m²
- Dimensions hors tout : 389,3 x 580 cm – 22,5 m²
- Espace intérieur : 293,2 x 197,4 cm – 5,78 m²
- Espace extérieur couvert : 300 x 332,4 – 9,97 m²
La toiture à double pente du chalet de jardin est constituée de voliges revêtue d’un feutre bitumé. Son degré de pente de 22° lui permet d’évacuer l’eau de pluie efficacement. Afin d’obtenir une étanchéité parfaite du toit, nous vous recommandons d’y apposer 23,8 m² de bardeaux bitumés.
Le bois d’épicéa brut qui constitue les parois de l’abri n’est pas traité. Il sera nécessaire pour le protéger des insectes, des champignons et de l’humidité de lui apporter une couche de produit insecticide et fongicide, mais également une lasure.
Concernant le plancher, celui-ci est constitué de lambourdes en bois massif traité. Il est destiné à la partie intérieure du cabanon.
La double porte qui permet d’accéder à la remise mesure 149,4 x 185 cm et dispose de vitres simple vitrage pour apporter de la lumière à l’intérieur de la pièce.
Pour l’installation de l’abri de jardin, rien de plus simple : il vous suffira de vous laisser guider par la notice détaillée et d’assembler les madriers qui composent les murs.
Vous aurez le choix de monter l’abri dans le sens que vous souhaitez, c’est-à-dire en plaçant la remise à droite ou à gauche de l’auvent. L’ensemble de cette annexe de jardin est garantie 2 ans.













Avis
Il n’y a pas encore d’avis.