Le studio de jardin Doméo 4 V2 Plus de Lasita est une véritable extension de la maison, totalement indépendante. Sa surface intérieure de 12,81 m² vous permet d’installer un bureau de jardin, une chambre d’amis, une salle de jeux… à vous d’imaginer ce qu’il pourrait devenir !
Ce chalet de jardin peut être rendu parfaitement habitable. En effet, il est constitué de murs en bois de 44 mm d’épaisseur et de fenêtres en double vitrage 4/6/4 mm pour une meilleure isolation. Le double vitrage permet de limiter l’utilisation du chauffage en hiver et de garder la fraicheur en été, soit une consommation énergétique réduite de 47%.
L’abri de jardin est fabriqué en bois d’épicéa brut, qu’il sera nécessaire de traiter contre la moisissure et les insectes xylophages avec un traitement fongicide et insecticide. Les madriers à emboiter qui le composent facilitent grandement le montage. Des protections d’angle en aluminium gris anthracite, un toit plat, une terrasse couverte et des baies vitrées viennent renforcer le design contemporain de ce studio de jardin.
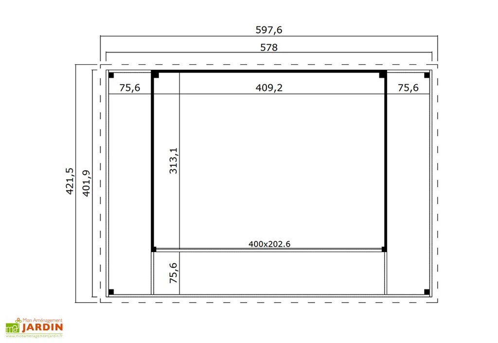
Le toit plat possède une légère pente de 2,1° ce qui permet à l’eau de pluie de s’écouler facilement. Il est constitué de voliges de 18 mm d’épaisseur et il est couvert d’un feutre bitumé (pour une étanchéité optimale sur le long terme, une couverture définitive est à prévoir). La terrasse couverte de 9 m² possède une profondeur de 75,6 cm et vous pourrez la retrouver sur 3 côtés de l’abri.
Les fenêtres qui composent ce chalet de jardin sont en réalité une seule grande baie vitrée verrouillable qui couvre toute la face avant de l’abri, apportant un maximum de lumière dans la pièce. La baie vitrée coulissante est elle-même constituée de 4 éléments et mesure 400 cm de longueur et 202,6 cm de hauteur. Son cadre est en aluminium gris anthracite, il ne rouille pas et ne demande pas d’entretien.
Les dimensions du studio de jardin :
- Dimensions hors tout : 597,6 x 421,5 x 239 cm (surface totale : 25,19 m²)
- Dimensions extérieures : 578 x 401,9 cm (surface au sol : 23,24 m²)
- Dimensions intérieures : 409,2 x 313,1 cm (surface intérieure : 12,81 m²)
Le plancher est inclus avec cet abri. Il est en bois également et doté de lambourdes traitées. Le montage du studio de jardin livré en kit est facilité par les madriers à emboiter simplement.
La garantie est de 5 ans.
Important : une isolation supplémentaire des murs sera nécessaire pour une utilisation à l’année.















Avis
Il n’y a pas encore d’avis.