Le chalet en bois habitable Doméo 3 V2 Plus de Lasita mesure 6,08 m de longueur pour 4,19 m de profondeur et 2,39 m de hauteur, soit une surface hors tout de 25,5 m². Il est constitué de madriers à emboiter en bois d’épicéa brut. Il sera nécessaire de lui appliquer un traitement fongicide et insecticide pour le protéger le bois des agressions extérieures.
Le saviez-vous ? Le bois brut est idéal pour une customisation facile ! Vous pouvez facilement le peindre ou le lasurer pour le personnaliser.
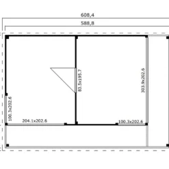
Ce studio de jardin est constitué de 2 pièces communiquant par une porte simple de 83,5 x 195,7 cm (l,h).
- Une pièce de 313 x 273,8 cm (soit 8,57 m²)
- Une pièce de 217 x 313 cm (soit 6,79 m²)
Vous pouvez ainsi transformer cet abri en studio de jardin habitable totalement indépendant. Les madriers en bois possèdent une épaisseur de 44 mm et les baies vitrées et fenêtres qui le constituent sont en double vitrage 4/6/4 mm. Il bénéficie également d’une terrasse couverte en bois de 80 cm de profondeur sur la face avant et sur l’un des côtés. Elle couvre 6,75 m².
On apprécie particulièrement le design contemporain de ce studio de jardin amené par 2 baies et 2 fenêtres qui viennent vitrer toute une partie de l’abri, le toit plat résolument moderne et les protections d’angles en aluminium gris anthracite. La toiture plate bénéficie d’une légère pente de 2,4° qui permet à l’eau de pluie de s’écouler. Elle est en voliges de 18 mm d’épaisseur, recouverte d’un feutre bitumé (il est conseillé de prévoir une couverture définitive afin d’assurer une étanchéité parfaite du toit sur le long terme).
Les fenêtres en double vitrage et aluminium de l’abri :
- Une baie vitrée coulissante de 204,1 x 202,6 cm (l,h) – sur la face avant
- Une baie vitrée coulissante de 303,9 x 202,6 cm (l,h) – en 3 éléments, sur la partie droite
- 2 grandes fenêtres avec châssis fixes de 100,3 x 202,6 cm (l,h)
Les baies vitrées peuvent être verrouillées pour protéger vos biens.
Les dimensions au sol de ce chalet de jardin sont de 589 x 402 cm, comprenant la terrasse en bois et le plancher inclus. Le plancher en bois est pourvu de lambourdes traitées. L’abri est livré en kit : ses madriers sont à emboiter, simplifiant ainsi le montage.
La garantie est de 5 ans.
Important : une isolation supplémentaire des murs sera nécessaire pour une utilisation à l’année.













Avis
Il n’y a pas encore d’avis.